ARC 1950 - 350 Manoir Savoie
Paradiski, Les Arcs, FranceKey Features
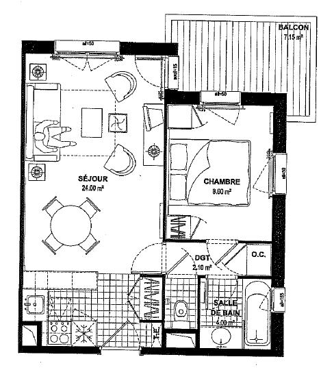
- Charming one bedroom apartment
- CLASSIC FREEHOLD
- 38.70 m2 of habitable living space
- Open plan lounge and living area
- Apartment can comfortably sleep 4 people
- 7.15 m2 balcony with wonderful views over Arc 2000
- Access to all the fantastic leisure facilities
- Fully furnished with underground parking, ski locker and cave
Considering selling your property in Les Arcs? If you would like our expert team located in Les Arcs to organise a valuation of your property, please fill in the form by clicking the button below or call us directly in the office on +44 (0)207 590 1624 and we will get in touch shortly!
Overview
CLASSIC FREEHOLD
This charming 1 bedroom apartment is located in Manoir Savoie and has a habitable living area of 38.m2. The apartment entrance leads into the modern kitchen, connected to the spacious lounge containing a contemporary dining area which can be seen throughout the apartment. There is a double bedroom which has a separate bathroom and WC. The large living area has a pull out sofa bed allowing the apartment to sleep 4 in comfort, with the separate bathroom facilities making easy access for both rooms. The sunny 6.45m2 balcony offers panoramic views towards neighbouring Arc 2000, with the striking backdrop of the Transarc Mountains.
As Arc 1950’s newest development (completed in 2007), all the Manoir Savoie apartments have been designed to a stylish and contemporary specification, an ethos which is echoed by the additional leisure facilities offered by the residence. The building has access to a heated pool, Jacuzzi, sauna, steam-room and fitness area, as well as a business centre. There is a 'cave' storage area for owners in the basement of the residence, a ski locker in the boot room and free allocated parking for all guests.
This property is Classic Freehold
Mortgage: If you are looking to finance your acquisition via a French mortgage, then please give us a call and we will be happy to assist you.









