This property is not currently available. It may be sold or removed from the market.
Sold STC
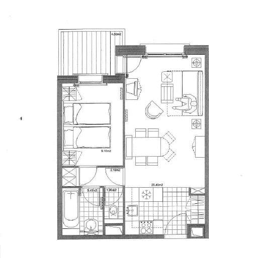
Arc 1950 - 451 Sources de Marie - 1 Bed
Les Arcs, Paradiski, FranceKey Features
- Charming 1 bedroom apartment
- Well laid-out apartment with 40.66m2 of habitable living space
- Open-planned dining/living room
- Double bedroom and separate bathroom and WC
- 4.5m2 East-facing balcony
- Fully furnished with underground parking, ski locker and cave
- Access to all of the fantastic leisure facilities within the village
- Available under the leaseback scheme with Pierre et Vacances
Considering selling your property in Les Arcs? If you would like our expert team located in Les Arcs to organise a valuation of your property, please fill in the form by clicking the button below or call us directly in the office on +44 (0)207 590 1624 and we will get in touch shortly!
Overview
This is a charming 1 bedroom apartment of 40.66m2 of habitable living space, that benefits from a fully fitted and well equipped kitchen and an open-planned dining/living area from which you can access the 4,5m2 East facing balcony. The apartment has one double bedroom, and a separate bathroom and WC and can comfortably accommodate up to 4 people thanks to the pull-out sofa in the living room.Sources de Marie holds one of the most tranquil positions in the village of Arc 1950, away from the hustle and bustle of the centre square. The relaxing effect of this location is enhanced by the residence’s central spa facilities, which include a large indoor Jacuzzi, sauna and hammam steam baths. Each apartment has cable TV and free internet access, as well as an owner’s store cupboard, an extra storage ‘cave’ in the basement and a ski locker in the boot room. Sources de Marie has free allocated parking in the underground car park and free use of the heated pools at the Princes Des Cimes apartment block.
This property is available under the leaseback scheme with Pierre&Vacances.
Mortgage: If you are looking to finance your acquisition via a French mortgage, then please give us a call and we will be happy to assist you.







