ARC 1950 - 468 Refuge du Montagnard
Paradiski, Les Arcs, FranceKey Features
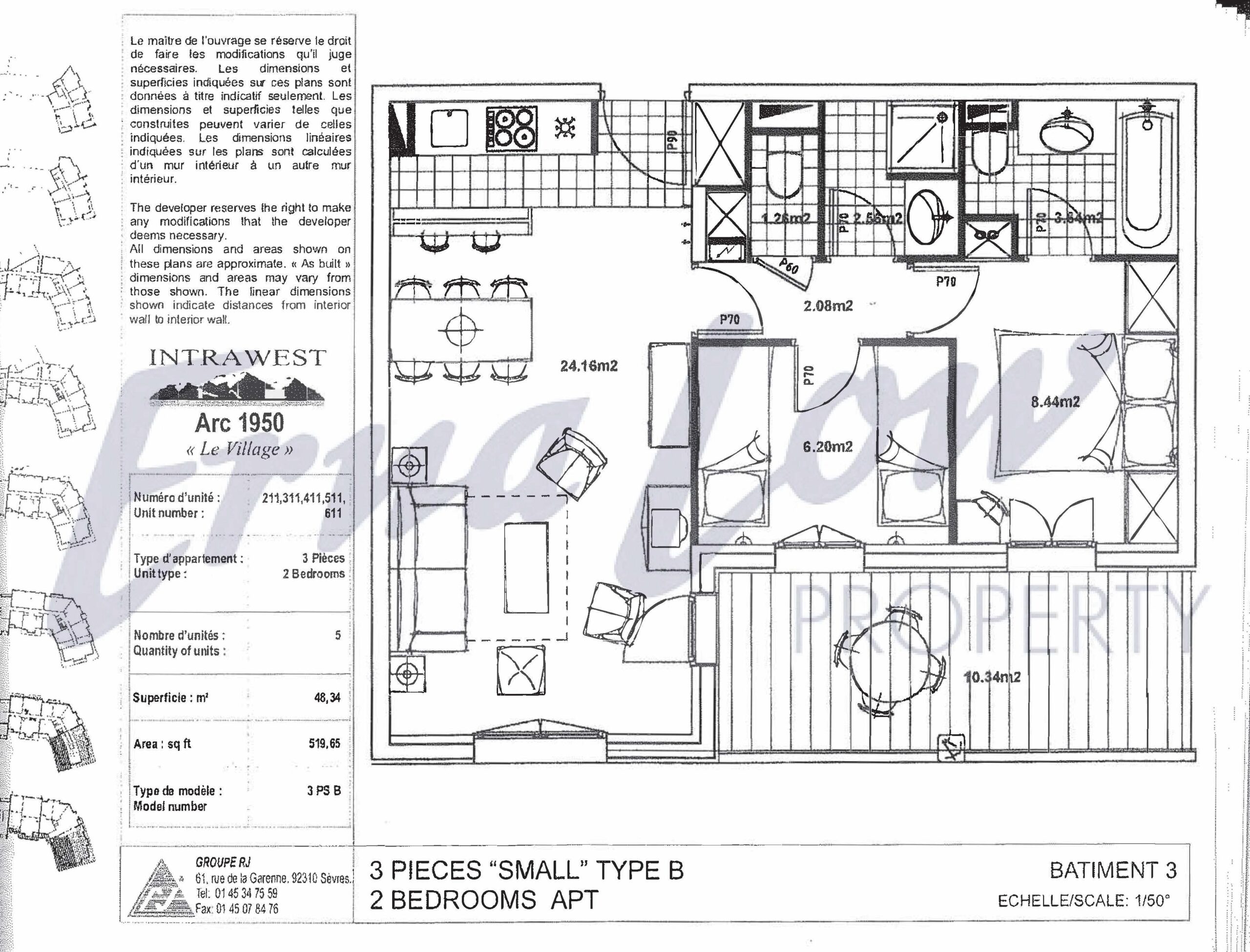
- Charming 2 bedroom / 2 bathroom apartment
- 48 m2 of habitable living space
- Excellent open plan kitchen and dining room
- Fantastic 10 m2 North-West facing balcony
- Master bedroom with en-suite bathroom
- Twin bedroom with separate WC and shower room
- CLASSIC FREEHOLD APARTMENT
- Fully furnished with underground parking, ski locker and cave
- Access to all of the fantastic leisure facilities within the village
Considering selling your property in Les Arcs? If you would like our expert team located in Les Arcs to organise a valuation of your property, please fill in the form by clicking the button below or call us directly in the office on +44 (0)207 590 1624 and we will get in touch shortly!
Overview
PRICE RECENTLY REDUCED - KEEN SELLER
A charming and well laid out two bedroom/two bathroom apartment. The apartment has an excellent, open planned dining/living room and 48.15m2 of habitable living space. Located in the ideally quiet residence Refuge du Montagnard, it can comfortably sleep 6 people due to the pull out sofa bed in the living room. As you enter the apartment you are welcomed by a large fully fitted kitchen which leads into the open planned dining/living area. From the living room you can access the fantastic 10.60m2 North-Westerly facing balcony. The balcony has views across to Auberge Jerome and the surround mountains.
The first of the double bedrooms has lots of storage space and its own ensuite bathroom with WC and bath for unwinding after a hard days skiing. The second of the double bedrooms has access to the second bathroom through the hallway which has a separate WC and shower.
Apartments in Refuge du Montagnard benefit from the use of an indoor pool, a heated outdoor pool, jacuzzi, gym, sauna, and steam room. Additional to the very large owner’s store cupboard within the apartment, this apartment has a ‘cave’ in the basement, and 2 ski lockers in the boot room. All apartments in Refuge du Montagnard have cable TV, Wifi, and free of charge allocated parking in the underground car park.
This property is available as classic freehold and truly is not an opportunity to miss.
Mortgage: If you are looking to finance your acquisition via a French mortgage, then please give us a call and we will be happy to assist you.








